



Très rare Terrain viabilisé avec permis secteur Alata.
Située sur la commune d' Alata, secteur route d'Alata à seulement 3 minutes du centre d' Ajaccio, école à 200 mètres.
Magnifique terrain à bâtir très arbore d'oliviers et de chênes, avec permis libre constructeur, terrain de 1000 m2 expo : sud-ouest, vue dégagée sur le château de la Punta.
Ce terrain ne fait pas partie d'un lotissement.
Bénéficiant d'une excellente exposition, viabilisé, eau, téléphone, électrice, fibre, assainissement collectif.
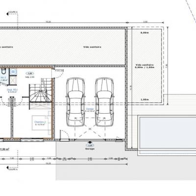
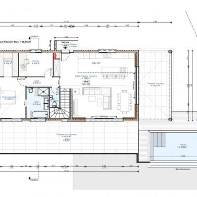
Descriptif du permis : Maison individuelle type T5 évolutive de 148m² avec piscine 7x3 et garage de 50m², terrasse couverte de 30m², terrasse non couverte de 50m², possibilité d'extension de 45m² du rdc au niveau du vide sanitaire pour obtenir une maison d'une surface totale de 195m².
Permis RT 2012 validé par la Mairie et la Préfecture de Corse du Sud.
Permis purgée de tout recours et constaté par huissier de justice.
Tarif 200.000€
Mr CANAZZI Thierry au 0620602576




La centrale de l'immobilier Col du Pruno 20167 Alata
06 20 60 25 76